Portfolio

Morada do Vale I

APTOS novos com 2 dormitórios

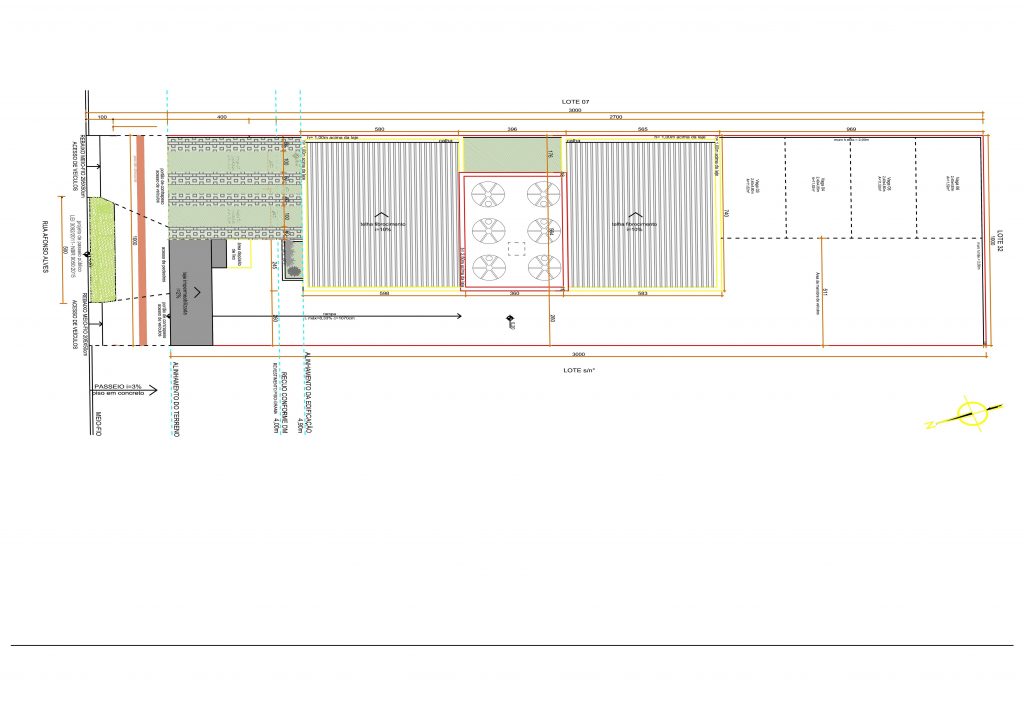
Rua Afonso Alves, 1272.
Bairro: Morada do Vale I – Gravataí – RS
Aptos com 2 dormitórios de 41m² a 44m² de área Privativa
Sala de estar/cozinha
Banheiro
Lavanderia

 

Detalhes:
Prédio de alvenaria Estrutural.
Esquadrias externa de alumínio com persianas nos dormitórios e portas internas de madeira.
Piso cerâmico na sala de estar/cozinha, dormitórios, banheiro e lavanderia
Azulejo nas paredes hidráulica da cozinha e lavanderia
Banheiro c/ azulejo até o teto c/ vaso e lavatório
Instalação elétrica c/ suportes, tomadas e interruptores instalados
Água e gás com instalações individuais.

Valores(documentação paga pela construtora):

Apto 201 com box 02 é de R$ 168.000,00
Apto 302 com box 06 é de R$ 165.000,00

Obs: Aceitamos FGTS e Financiamento CAIXA ou BB.

Endereço
Rua Afonso Alves, 1272
Valores
Apto 201 com box 02 é de R$ 168.000,00------------ Apto 302 com box 06 é de R$ 165.000,00
Dimensões
41m² a 44m² de área privativa